Pour une retraitée : Optimisation des volumes d'un appartement dans son jus depuis les années 40s et conçu tout en couloir.
GOBELINS, 55 M2
Avant :
Avant :
beaucoup de création mobilier  pour cet appartement dans un immeuble des années 90 situé à Bois Colombes, et une chambre parentale "sauvée".
BOIS COLOMBES, 80 M2
Avant :
Appartement totalement repensé pour ce couple :
Création d'une cuisine ouverte, d'une suite parentale, d'une salle à manger et d'un espace modulaire servant de bureau et de chambre d'amis.
Mobilier sur mesure.
ST ANDRE DES ARTS 80 M2,
PARIS VI
Après :
Avant :
Création d'une nouvelle cuisine optimisée, plan de travail en chêne massif éclairci,  rangements sur mesure, nouveau parquet dans la chambre et le bureau, déport de chaudière pour création d'un coin buanderie, et nouvelle salle de bain à l'éclairage très soigné .
DUPLEIX A L'ESPRIT DANOIS,
80 M2, PARIS XI
Après :
Avant :
Restructuration totale d'un appartement avec reprise en sous-oeuvre.
Chauffage par le sol, isolation des plafonds. Cuisine, verrière et rangements sur mesure.
RESTRUCTURATION pour jeune couple, 64 m2, PARIS IX
Après :
Avant :
Rénovation d'un appartement dans immeuble de Willemotte :
création des coins cheminée, bureau et tv, rénovation salle de bain et chambre.mobilier entièrement sur mesure.
Reprise de l'éclairage de la cuisine.
COUP DE NEUF chez Willemotte,
160 M2, PARIS XV
Après
Après :
Avant :
Avant
Après
Avant
Après
Avant
Après
Avant
Après
Avant
Après
Avant
Après
Avant
Après :
Avant :
Après
Avant
Après :
PROJETS PRIVÉS
Avant :
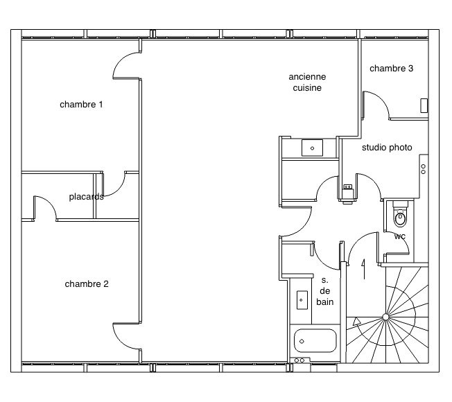
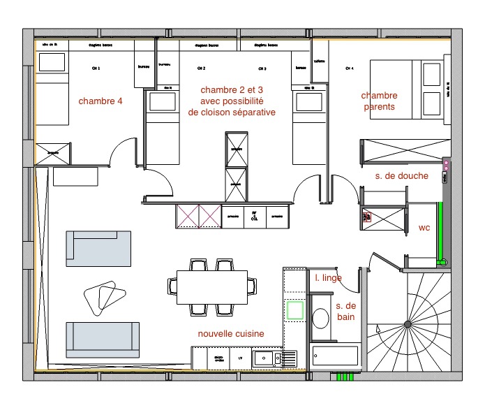
Mise en valeur d'un appartement de type haussmannien, 4 chambres, 3 salles de bain. Mobilier cuisine et rangements sur mesure. mise en teinte, conseils papier  peint, mobilier éclairages.
RENO-DÉCO TRENDY, 160 M2,
PARIS XV
Petit budget et petits délais pour se sentir chez soi
Transformation d'un 3 pièces en 2 pièces. Création d'une salle de bain dans la cuisine. Transformation de l'ancienne salle de bain en dressing. Création d'une cuisine ouverte.
 
Nous sommes forts de propositions techniques et esthétiques pour apporter de la valeur à votre bien,
mais notre souci premier sera toujours de réaliser  des projets, dont l'ergonomie et la décoration correspondent aux goûts, au budget et au mode de vie de leurs habitants.
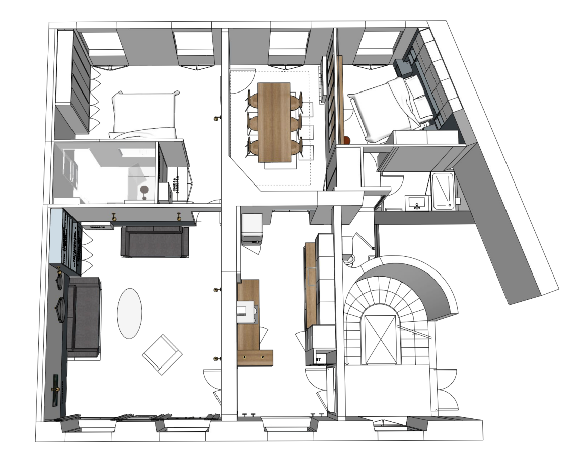
Pour famille nombreuse : Agrandissement de 110 m2 par récupération de combles perdues. Percement de trémie pour escalier sur mesure. Isolation toiture, pose de velux. Création de points d'eau, wc et placards en sous pente.
Pour un couple et 3 enfants : restructuration d'un plateau de 100 m2. Percement de 3 baies de souffrance, création cuisine ouverte, salles de bain et chambres.
REUNION DE 2 APPARTEMENTS A SUFFREN, PARIS XV
Après
Avant
Après
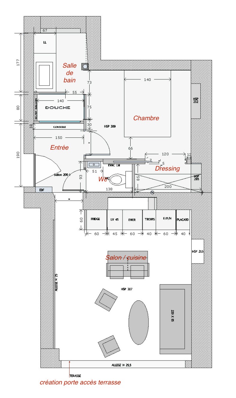
Pour de la location touristique : Transformation d'un local commercial vétuste et sombre, en
une habitation lumineuse. Creation de terrasse, salle de bain et cuisine ouverte.
Après
Projet en cours
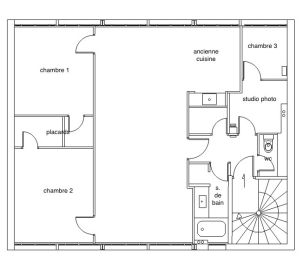
MAISON FAMILIALE,
Rueil Malmaison
Après
Avant
Pour musicien : Esprit masculin dans un local carrelé, sombre et froid, repensé en  lieu de vie et de musique.
Avant
 
Pour un jeune couple :
Ambiance minimaliste.
Aménagement d'un plateau nu au dernier étage d'un immeuble réhabilité.
Avant
LOOK CLASSIQUE,
PARIS VI
OPTIMISATION D'UNE MAISON D'OUVRIERS POUR JEUNES CSP+,
SURESNES
Pour un jeune couple 1 enfant : optimisation maximale des combles au jardin : Décaissement et étude du réseau d'égoûts, transformation d' un "basement" en RDC de plain pied avec salle de bain, création d'escalier, des espaces cuisine/ salle à manger/ salon, création d'une  buanderie dans une ancienne cuve à mazout.
ELVIRE M. atelier d'architecture et décors
À PROPOS 
MISSIONS 
BOOK
CV 
CONTACT 
DESIGN MOBILIER
cinéma publicité événementiel 
Commercial 
Privé 
DECORS EN IMAGES 
ARCHITECTURE EN IMAGES